Villa singola in vendita

Seriate, Via molino vecchio
€ 620.000
4 locali 4 locali
182 Mq 182 Mq
2 bagni 2 bagni

Villa singola in vendita

Seriate, Via molino vecchio

Descrizione annuncio

SERIATE

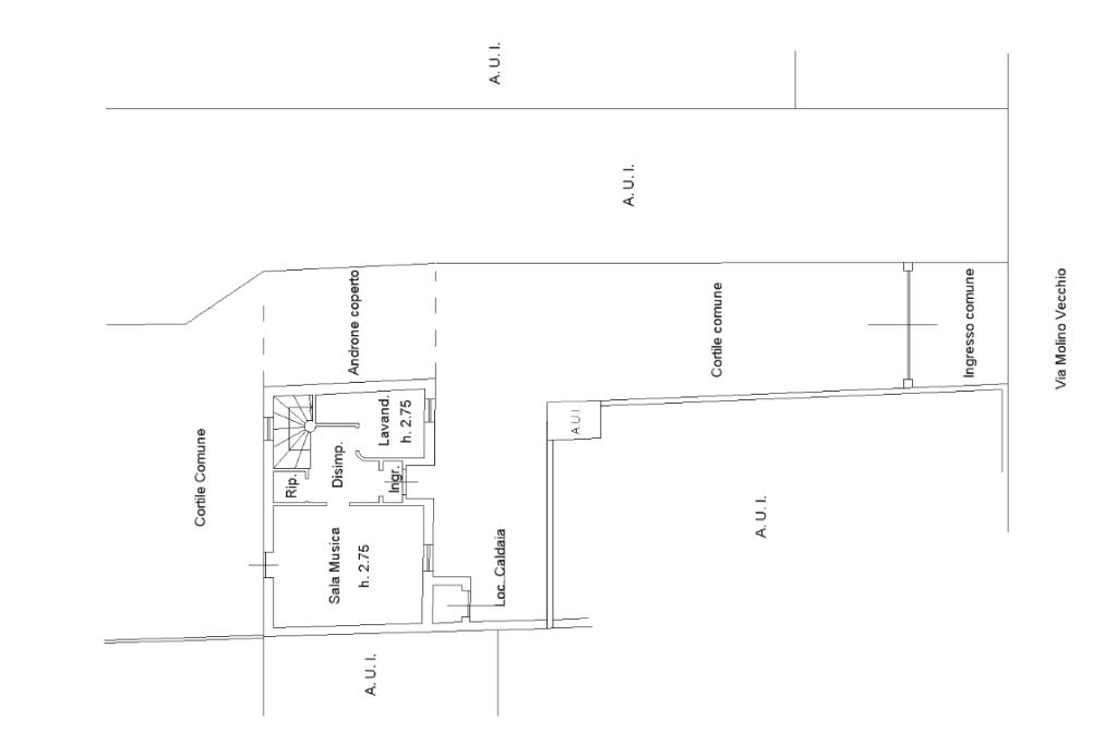
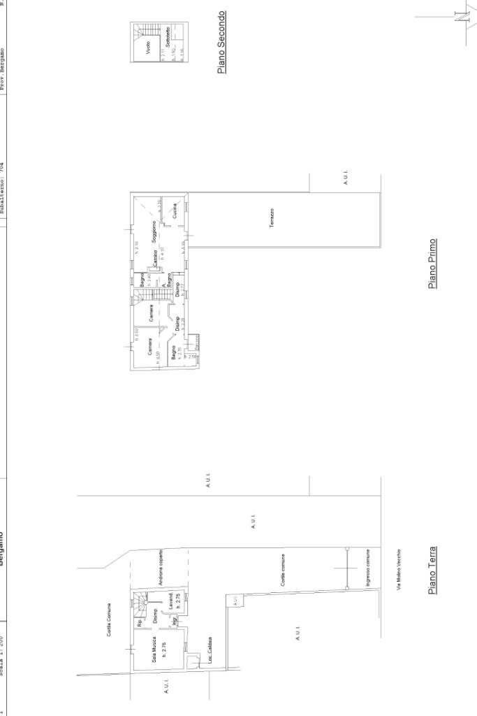
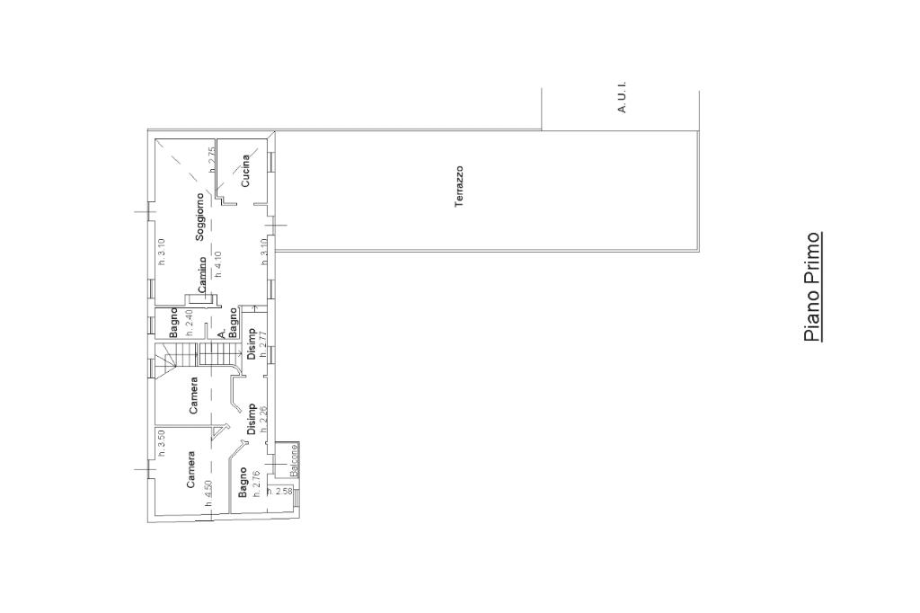
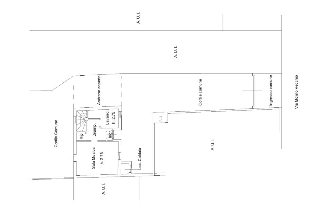
Villa indipendente in vendita a Seriate – ampia terrazza, box doppio e comfort in ogni dettaglio

A Seriate, in una zona residenziale tranquilla ma al tempo stesso ben servita, proponiamo in vendita una splendida villa indipendente, ideale per chi desidera vivere in un contesto riservato, con ampi spazi e dotazioni moderne.

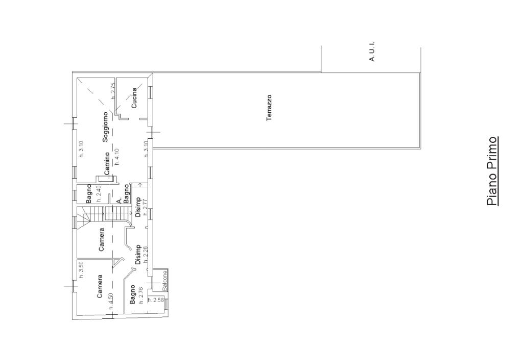
L’immobile si sviluppa su due piani e si presenta in ottimo stato, con ambienti luminosi e ben distribuiti. Tra i punti di forza spicca una grande terrazza di circa 90 mq, perfetta per rilassarsi, organizzare cene all’aperto o semplicemente godere di uno spazio esterno esclusivo.

La proprietà dispone di un comodo box doppio, che garantisce ampio spazio per parcheggiare più veicoli e per eventuali esigenze di deposito.

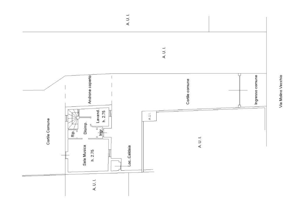
La villa è dotata di impianto per disabili sulla scala principale, che garantisce l’accessibilità a tutti i piani, e di un termostato presente in ogni stanza, per una gestione autonoma e ottimale del riscaldamento. Non è presente la cantina, ma la casa offre comunque numerosi spazi accessori ben sfruttabili.

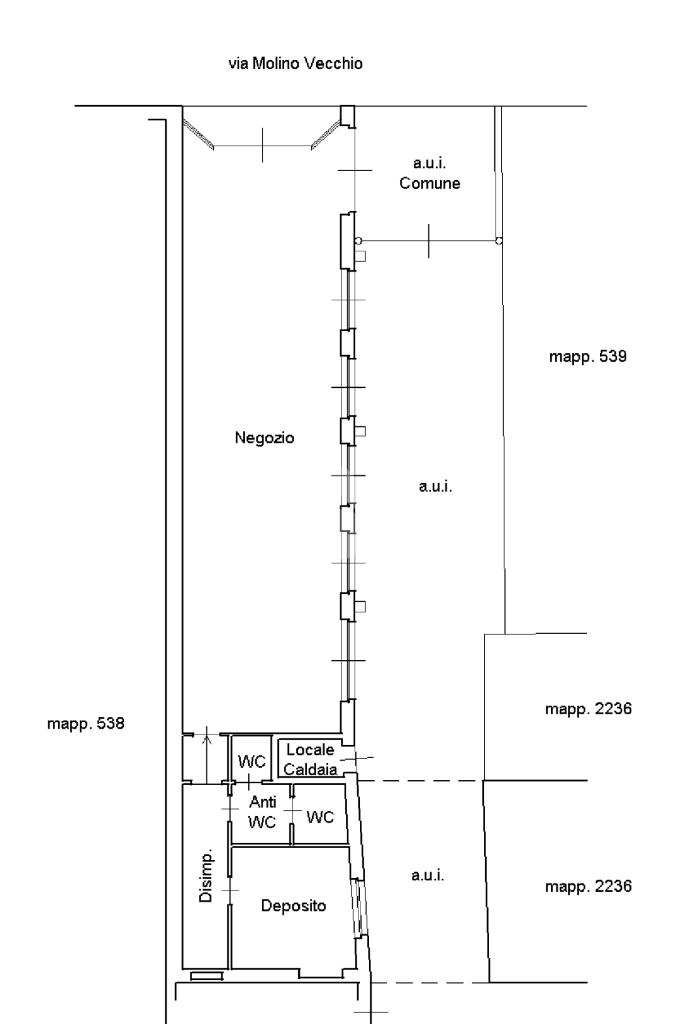
Incluso nel prezzo, l’acquisto comprende anche un negozio, un'opportunità interessante sia per uso personale che come investimento - su richiesta accettiamo lo scorporamento

Una soluzione abitativa completa, perfetta per chi cerca tranquillità, comodità e un valore aggiunto in termini di spazio e versatilità.

Mostra tutto

Nelle vicinanze

Trasporto pubblico Trasporto pubblico
Seriate
Seriate
230 m
1110
1110
40 m
686
686
50 m
Ricariche auto elettriche Ricariche auto elettriche
Seriate Europa | EnelX
730 m
Seriate Partigiani | EnelX
780 m
Seriate Viale Lombardia | EnelX
890 m
Eneldrive Esselunga della Celadina
1,3 Km
Chiesa Di S. Evasio Pedrengo | Ressolar
1,6 Km
Scuole Scuole
Istituto superiore Ettore Majorana
820 m
Scuola Edile
820 m
I.C. A. Moro
850 m
Scuole
890 m
Istituto Comprensivo De Amicis
1,5 Km
Farmacia Farmacia
Farmacia
90 m
Farmacia Nuova Seriate
890 m
Celadina
1,4 Km
Iper Farma
1,5 Km
Farmacia Doneda
1,6 Km
Ospedali Ospedali
Ospedale Bolognini
650 m
Supermercati Supermercati
Lidl
170 m
Unes
630 m
Legler Market
850 m
Metro
1,1 Km
Esselunga della Celadina
1,3 Km
Negozi Negozi
Milano Moda
1,2 Km
Panetteria Del Borgo
2,2 Km
Bimbo Store
2,2 Km
Negozi
2,9 Km
Bergamo Divise
3,0 Km
Bar Bar
Bar
50 m
#Quantobasta Bar and more
930 m
Civico 22
1,2 Km
Bar Macchiavelli
1,2 Km
Bar Papillon
1,3 Km
Ristoranti Ristoranti
Pizzeria Il Cantuccio
540 m
Ristoranti
690 m
Pizza Planet di Aceti Carmen
740 m
My Wok Sushi
940 m
Da Gina
1,3 Km
Mostra tutto

Caratteristiche

Rif.:
61119006
Piano:
1 di 1 (Piano su più livelli)
Box:
1
Terrazzi:
1
Camere da letto:
3
Arredamento:
Completo
Mostra tutto
Prezzo Prezzo
€ 620.000
Rata mutuo Rata mutuo
€ 2.881 / mese
Spese annue Spese annue
€ 0
Proponi il tuo prezzoProponi il tuo prezzo

Classe Energetica

E
E
E
E
E
E
E
E
E
EP invernale del fabbricato:
EP estiva del fabbricato:
Anno di costruzione:
1996
Riscaldamento:
Autonomo
Tipo impianto:
A pavimento
Tipo alimentazione:
Metano

Ti interessa visionare l'immobile?

Fissa un appuntamento  Fissa un appuntamento

Richiedi informazioni

Clicca su Leggi per aprire l'informativa
* Questi campi sono obbligatori

Calcola il tuo mutuo

Semplice e senza impegno
Anticipo

( % )
Mutuo

( % )

pochi semplici passi

inserisci i tuoi dati
Questionario completato
Grazie per aver richiesto un appuntamento senza impegno con un nostro Consulente del Credito e Assicurativo.

Hai inserito correttamente tutti i dati necessari e a breve riceverai una e-mail con un link da convalidare per inviare i tuoi dati.
Affiliato
Tecnoseriate Srl
P.zza Papa Giovanni XXIII, 13 24068 Seriate (BG)

Il nostro staff


  • Riccardo Zanetti
    Affiliato

  • Alessia Benicchio
    Collaboratrice

  • Cristiana Benis
    Coordinatrice

  • Eldi Dedja
    Responsabile

  • Ramazan Dedja
    Collaboratore

  • Jacopo Fracassetti
    Collaboratore

  • Alessio Rodriguez
    Collaboratore
P.zza Papa Giovanni XXIII, 13 24068 Seriate (BG)
Zona: Seriate Est-Cavernago
Mostra su mappa
Orari: Dal Lunedì al Venerdì 09.00 - 12.30 14.30 - 20.00 Sabato09.00 - 18.00 Domenica su appuntamento
Affiliato
Tecnoseriate Srl
P.zza Papa Giovanni XXIII, 13 24068 Seriate (BG)

2026 Tecnocasa Franchising S.p.A. - P. IVA 08365160152 - Via Monte Bianco 60/A 20089 Rozzano (MI). Ogni agenzia ha un proprio titolare ed è autonoma. Privacy policy | Policy utilizzo | Cookie policy