Villa singola in vendita

Cavernago, Via Alessandro Volta
€ 488.000
3 locali 3 locali
300 Mq 300 Mq
3 bagni 3 bagni

Villa singola in vendita

Cavernago, Via Alessandro Volta

Descrizione annuncio

CAVERNAGO:

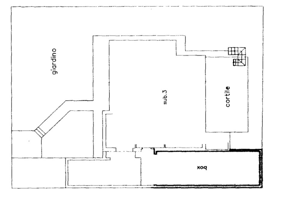
In contesto tranquillo e riservato, proponiamo in vendita un elegante quadrilocale caratterizzato da spazi generosi e ambienti luminosi. La zona giorno si apre armoniosamente verso l’esterno, dove il giardino privato diventa il luogo ideale per momenti di relax e convivialità all’aria aperta.

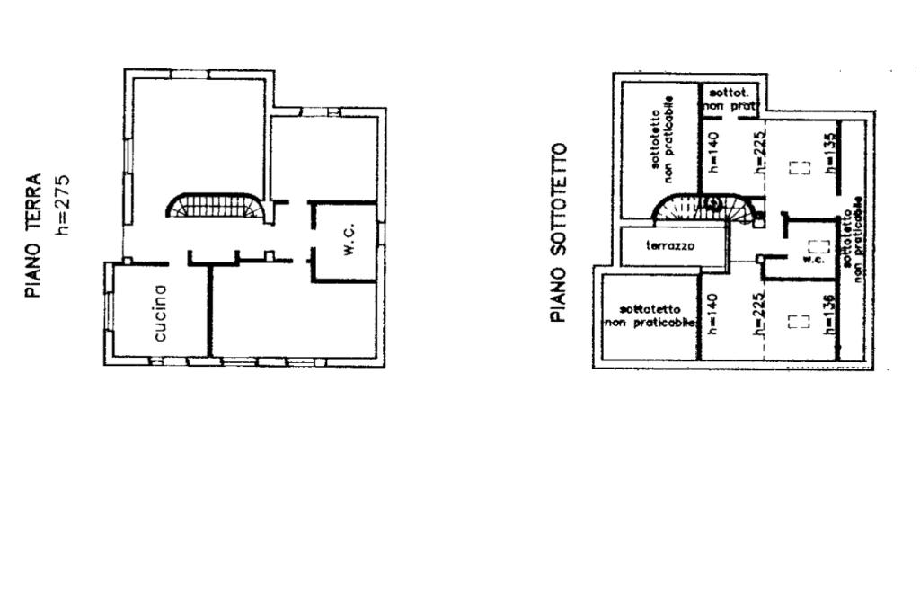
La zona notte ospita tre camere ben distribuite e tre bagni, offrendo comfort e funzionalità per tutta la famiglia. Il riscaldamento a pavimento garantisce un benessere abitativo costante e un’elevata efficienza energetica.

Completa la proprietà un comodo box doppio. Una soluzione moderna e accogliente, perfetta per chi desidera spazio, indipendenza e qualità abitativa.

Mostra tutto

Nelle vicinanze

Scuole Scuole
Scuola secondaria di Cavernago
500 m
Scuola primaria di Cavernago
580 m
Ospedali Ospedali
Ospedale di Calcinate "F.M. Passi"
2,8 Km
Ristoranti Ristoranti
Giropizza
1,2 Km
Pollicino
1,5 Km
Mostra tutto

Caratteristiche

Rif.:
61175555
Piano:
1 di 2 (Piano basso)
Box:
2
Terrazzi:
1
Camere da letto:
3
Arredamento:
Assente
Mostra tutto
Prezzo Prezzo
€ 488.000
Rata mutuo Rata mutuo
€ 2.267 / mese
Spese annue Spese annue
€ 0
Proponi il tuo prezzoProponi il tuo prezzo

Classe Energetica

E
E
E
E
E
E
E
E
E
EP invernale del fabbricato:
EP estiva del fabbricato:
Anno di costruzione:
1993
Riscaldamento:
Autonomo
Tipo impianto:
A pavimento
Tipo alimentazione:
Metano

Ti interessa visionare l'immobile?

Fissa un appuntamento  Fissa un appuntamento

Richiedi informazioni

Clicca su Leggi per aprire l'informativa
* Questi campi sono obbligatori

Calcola il tuo mutuo

Semplice e senza impegno
Anticipo

( % )
Mutuo

( % )

pochi semplici passi

inserisci i tuoi dati
Questionario completato
Grazie per aver richiesto un appuntamento senza impegno con un nostro Consulente del Credito e Assicurativo.

Hai inserito correttamente tutti i dati necessari e a breve riceverai una e-mail con un link da convalidare per inviare i tuoi dati.
Affiliato
Tecnoseriate Srl
P.zza Papa Giovanni XXIII, 13 24068 Seriate (BG)

Il nostro staff


  • Riccardo Zanetti
    Affiliato

  • Alessia Benicchio
    Collaboratrice

  • Cristiana Benis
    Coordinatrice

  • Eldi Dedja
    Responsabile

  • Ramazan Dedja
    Collaboratore

  • Jacopo Fracassetti
    Collaboratore

  • Alessio Rodriguez
    Collaboratore
P.zza Papa Giovanni XXIII, 13 24068 Seriate (BG)
Zona: Seriate Est-Cavernago
Mostra su mappa
Orari: Dal Lunedì al Venerdì 09.00 - 12.30 14.30 - 20.00 Sabato09.00 - 18.00 Domenica su appuntamento
Affiliato
Tecnoseriate Srl
P.zza Papa Giovanni XXIII, 13 24068 Seriate (BG)

2026 Tecnocasa Franchising S.p.A. - P. IVA 08365160152 - Via Monte Bianco 60/A 20089 Rozzano (MI). Ogni agenzia ha un proprio titolare ed è autonoma. Privacy policy | Policy utilizzo | Cookie policy