Trilocale in vendita

Cavernago, Via Roggia Borgogna
€ 185.000
3 locali 3 locali
100 Mq 100 Mq
1 bagno 1 bagno

Trilocale in vendita

Cavernago, Via Roggia Borgogna

Descrizione annuncio

CAVERNAGO

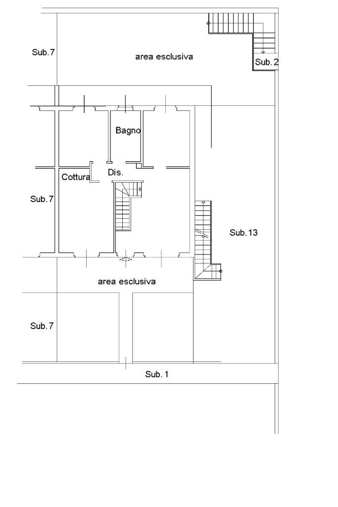
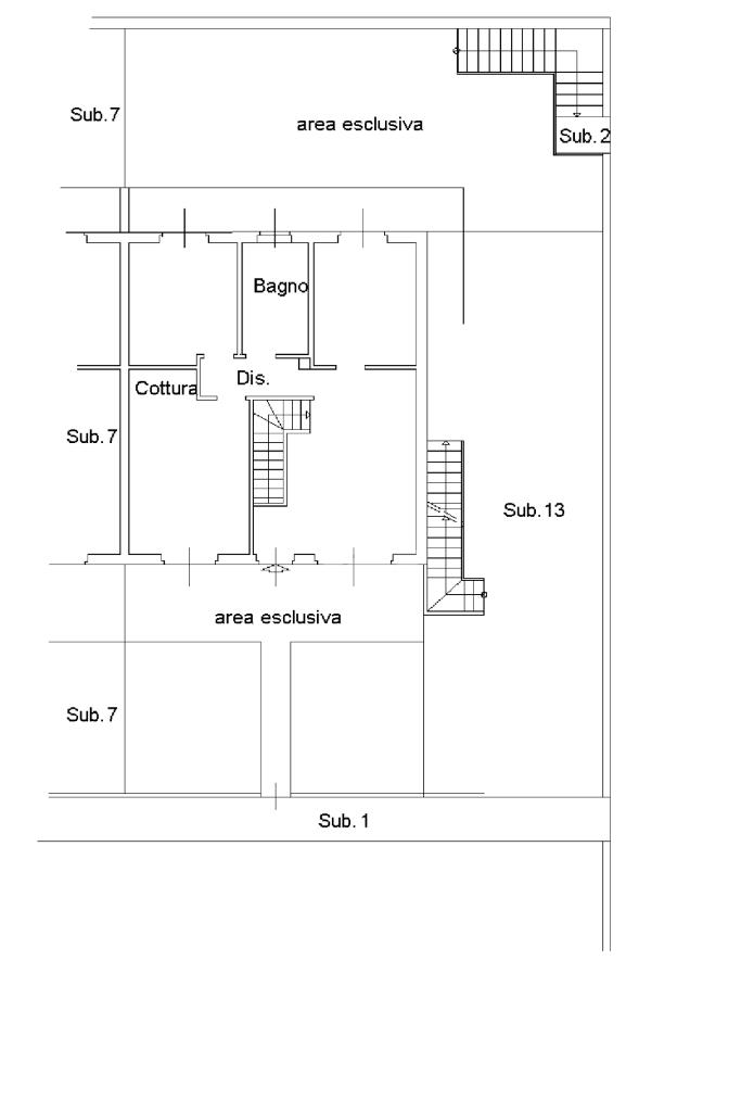
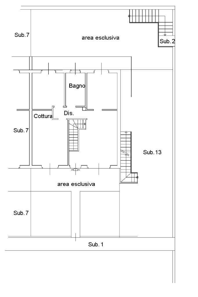
Trilocale con taverna, giardino privato e box doppio

In una zona residenziale tranquilla ma ben servita, proponiamo in vendita un accogliente trilocale al piano terra, completo di taverna, giardino privato e box doppio.
L’immobile è ideale per chi cerca comfort, privacy e spazi ben distribuiti, ed è perfetto sia per famiglie che per giovani coppie.

L’abitazione si sviluppa su due livelli: al piano terra troviamo una luminosa zona giorno con cucina a vista, due camere da letto e un bagno finestrato. Al piano inferiore, collegata internamente, si apre un’ampia taverna, uno spazio versatile che può essere utilizzato come sala hobby, studio, zona relax o eventualmente come ulteriore ambiente abitativo.

Il giardino privato è uno dei punti di forza dell’immobile: curato e riservato, è l’ideale per godersi momenti all’aperto in totale tranquillità, magari in compagnia di amici, familiari o del proprio animale domestico.

La casa viene venduta completamente arredata, con mobili moderni e funzionali, pronta per essere abitata fin da subito, senza necessitĂ  di interventi. Completano la proprietĂ  un comodo box doppio e spazi accessori ben organizzati.

Un’ottima soluzione abitativa in un contesto tranquillo ma vicino a tutti i principali servizi, scuole, negozi e collegamenti stradali.

Mostra tutto

Nelle vicinanze

Trasporto pubblico Trasporto pubblico
Ghisalba - Via Provinciale, 9
Ghisalba - Via Provinciale, 9
2,8 Km
Ghisalba - Via Provinciale, 30
Ghisalba - Via Provinciale, 30
2,9 Km
Scuole Scuole
Scuola primaria di Cavernago
910 m
Scuola secondaria di Cavernago
920 m
Scuola Primaria Papa Giovanni XXIII
2,3 Km
Scuola Elementare C. Cossali
2,8 Km
Ospedali Ospedali
Ospedale di Calcinate "F.M. Passi"
1,9 Km
Supermercati Supermercati
MD Market
2,6 Km
Ristoranti Ristoranti
Giropizza
250 m
Pollicino
470 m
Mostra tutto

Caratteristiche

Rif.:
61124463
Piano:
1 di 1 (Piano terra)
Box:
1
Camere da letto:
2
Arredamento:
Completo
Condizionamento:
Autonomo
Mostra tutto
Prezzo Prezzo
€ 185.000
Rata mutuo Rata mutuo
€ 872 / mese
Spese annue Spese annue
€ 150
Proponi il tuo prezzoProponi il tuo prezzo
Immobile valutato con T¡Valuta

Classe Energetica

B
B
B
B
B
B
B
B
B
EP invernale del fabbricato:
EP estiva del fabbricato:
Anno di costruzione:
2012
Riscaldamento:
Autonomo
Tipo impianto:
A radiatori
Tipo alimentazione:
Metano

Ti interessa visionare l'immobile?

Fissa un appuntamento  Fissa un appuntamento

Richiedi informazioni

Clicca su Leggi per aprire l'informativa
* Questi campi sono obbligatori

Calcola il tuo mutuo

Semplice e senza impegno
Anticipo

( % )
Mutuo

( % )

pochi semplici passi

inserisci i tuoi dati
Questionario completato
Grazie per aver richiesto un appuntamento senza impegno con un nostro Consulente del Credito e Assicurativo.

Hai inserito correttamente tutti i dati necessari e a breve riceverai una e-mail con un link da convalidare per inviare i tuoi dati.
Affiliato
Tecnoseriate Srl
P.zza Papa Giovanni XXIII, 13 24068 Seriate (BG)

Il nostro staff


  • Riccardo Zanetti
    Affiliato

  • Alessia Benicchio
    Collaboratrice

  • Cristiana Benis
    Coordinatrice

  • Eldi Dedja
    Responsabile

  • Ramazan Dedja
    Collaboratore

  • Alessio Rodriguez
    Collaboratore
P.zza Papa Giovanni XXIII, 13 24068 Seriate (BG)
Zona: Seriate Est-Cavernago
Mostra su mappa
Orari: Dal LunedĂŹ al VenerdĂŹ 09.00 - 12.30 14.30 - 20.00 Sabato09.00 - 18.00 Domenica su appuntamento
Affiliato
Tecnoseriate Srl
P.zza Papa Giovanni XXIII, 13 24068 Seriate (BG)

2025 Tecnocasa Franchising S.p.A. - P. IVA 08365160152 - Via Monte Bianco 60/A 20089 Rozzano (MI). Ogni agenzia ha un proprio titolare ed è autonoma. Privacy policy | Policy utilizzo | Cookie policy